 鲜花( 4)  鸡蛋( 0)
|
地址:2831 191 ST NW0 K9 g3 P; ~2 i: L5 L* j
* _) I- p* f! [, S$ E3 b, Z售价:$599,900
+ y; L3 b+ {# o3 g" n9 ^
4 o! M" l+ E+ ]0 o& J7 G联系方式:老杨团队
" G7 d! M4 K: F; }4 e: e9 i
' k- j3 k" A5 R- }2 x; F(http://www.fanyangteam.com)( H: g& r$ _. z. U$ [
. C+ V% h/ B( c/ U3 X5 r
" X/ X( | l; ]7 N4 I) L
3 d5 u! B' J3 f- @3 |2 x3 F) w爱城名区The Uplands优质美宅!3卧2.5卫浴转角旺地+直达加长双车库,机不可失!. b+ ^& ?) I3 k1 x* H! w
9 e# T8 L" p6 _0 r( W8 `
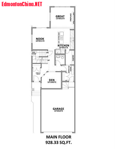
步入室内,9尺挑高开放式门厅。现代化的厨房配备了石英石台面、整体等高防溅墙和软关橱柜,寸寸精致!
V( ^! r+ D% b* z1 Q; h% ], C: ^
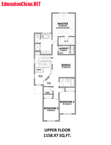
明亮的客厅里设有时尚电壁炉。拾级而上,二楼艺术天花板的主卧套房配备了双洗手池、瓷砖淋浴间和独立大浴缸。第二和第三间卧室也进行了扩建,增加了更多空间。
1 \) N* G* p* ]% @
5 |9 z* ]% J) `$ q7 s1 I2 c6 A9 A地下室坐拥9尺挑高天花板,开阔舒适!设有两扇大窗,采光充沛。侧门可独立出入!并预留了洗衣房、吧台、浴室、第二套锅炉、厨房和烘干机排气管道的管道——未来可改建成独立套房、潜力巨大!! }- a5 ~' b% ], H9 J) F' z
: s' h. G* [( \# ]+ u
全屋海量升级!配备了组合式百叶窗,并提供5000加元的家电补贴、白杨木栏杆和节能的三层玻璃窗。
$ \ U' R) R, u* O% e" e( B
' J9 Z0 ?5 c: n5 Y$ t, [2 @万事俱备、诚邀品鉴!
/ w; Q& q6 M; X4 K6 z5 { e4 ^; m! Q& d! ? e& F3 t/ `
Beautiful 3-bedroom, 2.5-bath home on a corner lot! Features a double attached garage with added length and an open-to-above foyer with 9’ ceilings. The modern kitchen offers quartz counters, full-height backsplash, and soft-close cabinets. Enjoy the cozy electric fireplace in the bright living area. Upstairs, the vaulted-ceiling primary suite includes double sinks, tiled shower, and freestanding soaker tub. Bedrooms 2 and 3 are extended for extra space. Basement with 9’ walls, 2 windows, and side entrance with rough-ins for laundry, wet bar, bath, 2nd furnace, kitchen & dryer vent—ready for future suite! Enjoy combi BLINDS throughout, a $5,000 appliance credit, poplar railings, and energy-efficient triple-pane windows. Quick possession available!! [% q, D' Q& w+ Y9 p; E
1 c8 b7 J2 q. ^
# i. T8 @4 P; ]0 u# c
$ A2 A/ l' l: t% F
" J8 f' b( `2 i. g7 ]% j
8 n W8 a4 k( `7 U+ W/ Q7 P
; i+ I/ Z V1 j0 m5 n* W; |& r
7 h& s/ T# i9 s, P2 B, i
# G" D* E" y7 L2 X7 G* [
" S% q7 T( z1 @9 N/ r
' H' r4 b% \) o* j9 w4 m) Q
! h% x4 s* r* C( t" g M1 h
9 S; q8 ]/ E6 Q- K5 G0 l' G# A
7 y |( e0 T" Z7 ?9 E: \& W) b6 L
: m7 U$ i* ~0 @1 n2 ?' N% d
3 X% @7 W8 s7 q/ q9 T4 d
' l/ m) _' k7 I
3 g! _0 C. j" m) l# T2 G
$ v: Y8 N* z$ T" R" X; |) s4 D
4 q7 X6 f7 f2 P+ j
; z/ A, A; k1 o: z! o" v( C# f
) c6 d. x' q& Z& {+ `7 f
" `, n& f$ W- t6 [9 y9 @
0 J& D4 z: D7 Y. ?0 D
" n# j" {" X& U2 N" B" O: H, i' G2 Y
" p' h, q5 m7 q- E# L& v
" b5 ~! p/ e' F. Q7 s9 r: B
I5 q a1 z6 ?7 K" M
p% y3 x; O4 m+ @) M
& U4 K7 T( ~- F8 n V2 ?9 t& k
% A7 @# S+ s4 o2 G- Y) n. g# ?
6 R" l9 q# i: f, H9 E
! y' h( c5 B F( H) u0 G5 M8 ^% |
2 k8 _ r: A5 f6 K! Y4 w
4 W. x8 E+ ^3 }; h' d- P" K/ Q, V. R5 M
/ ^8 J0 D; P& D1 U
( H% P& ~; g- K! c( i6 J
+ ?& @ I) K' S
5 Q+ e- ~) J2 e8 c* i5 I K
1 S) Q7 R3 P9 D, N
G* Y" p) [0 D2 n! f, }/ j
; L! \$ E$ w/ x1 z+ v
2 T% d+ Y, ]6 ~, e1 F: A z
( b; `7 E1 T7 U/ @; R. z
|
|